Szegedi Tudományegyetem Ahol tudás és szándék találkozik

2013  --  Műszaki és Létesítménygazdálkodási Iroda
Ajánlattételi felhívás SZTE/2013/PM02562
A Szegedi Tudományegyetem Gazdasági és Műszaki Főigazgatósága (továbbiakban: Ajánlatkérő) nyílt beszerzési eljárást hirdet.

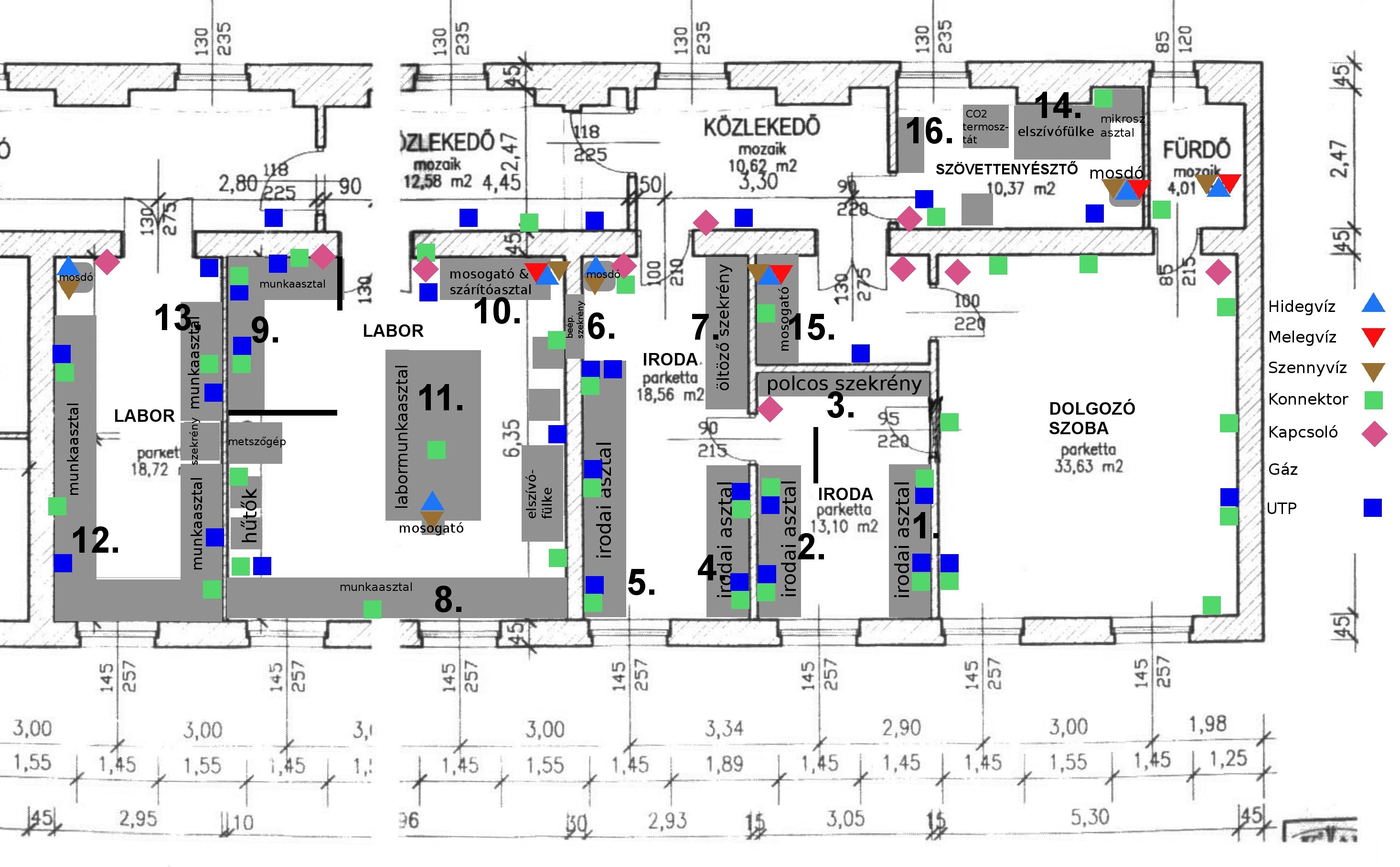
A beszerzés tárgya: SZTE ÁOK Anatómia, Szövet és Fejlődéstani Intézet (6724 Szeged, Kossuth L. sgt. 40.) felújításra kerülő laboratóriumi és dolgozószobák bútorzatának kivitelezésére terv készítés
2013. szeptember 12.
Ajánlat sorszáma: SZTE/2013/PM02562

Ajánlattételi határidő: 2013. szeptember 19 14:00

Szállítás, teljesítés tervezett időpontja: Szerződéskötéstől számított 15 naptári nap.

A beszerzés rövid ismertetője:

Helyszín:

 

SZTE ÁOK Anatómiai, Szövet- és Fejlődéstani Intézet, 6724 Szeged, Kossuth L. sgt. 40.

 

 

Tárgy:

 

„SZTE ÁOK Anatómia, Szövet- és Fejlődéstani Intézet I. emeletén közbeszerzési eljárás keretében labor és irodablokk kerül kialakításra. Az laborok és irodák berendezéséhez az intézet igényei alapján bútorozási terv készítésére kérünk ajánlatot.

 

A bútorozási tervvel szemben támasztott követelmények:

 

példány papír alapú és 1 példány elektronikus formátumban kell teljesíteni.

 

A tervdokumentációnak tartalmaznia kell 1 példány tételes árazatlan és 1 példány tételes árazott költségvetést is, melyeket nyomtatott és digitális formátumban is át kell adni.

 

Elektronikusan a költségvetést excel formátumban, a terv lapokat PDF formátumban és a műszaki leírást word formátumban kérjük becsatolni.

 

Az elemek kialakítása, az anyagok és színek vonatkozásában az intézettel egyeztetni kell.

 

Az egyes elemekről konszignálva kérjük a terveket, hogy a bútor elkészíthető legyen.

 

A terv készítésénél alapvető szempont a műszakilag megfelelő, de költséghatékony megoldások betervezése.

 

 

Az elkészítendő tervdokumentációkban foglalt szellemi alkotás a Tervező tulajdona lesz, de a tervezési díj megfizetésével a Megrendelő megszerzi a tervdokumentáció szabad, korlátozásmentes felhasználói jogát, amely alapján a Tervező előzetes jóváhagyása nélkül (de tájékoztatása mellett) jogosult azt teljes körben és korlátlan ideig felhasználni, továbbtervezésre másnak átadni, ezzel kapcsolatban a Tervezőnek további igénye nincs.

 

A tervező köteles, a kivitelezésre kiírt pályázatok során feltett, tervezéssel összefüggő kérdésekre - többek között a betervezett anyagok és berendezések kiváltására megajánlottak megfelelőségére, és elfogadására történő nyilatkozással -, a Megrendelő által megadott határidőre válaszolni.

 

A Vállalási árat a következő formában kérjük megadni:

 

Nettó összeg kiviteli tervdokumentáció:..…………………,- Ft

ÁFA 27%: ..…………………,- Ft

Bruttó összeg: ..…………………,- Ft

 

A nyertes pályázó 1 végszámlát nyújthat be a tervek sikeres átadás-átvételét követően. A számla fizetési határideje 60 naptári nap. Megrendelő előleget nem fizet.

 

Helyszíni bejárás helye és időpontja:

 

SZTE ÁOK Anatómia, Szövet- és Fejlődéstani Intézet Szeged, Kossuth L. sgt. 40.

 

2013. szeptember 13. 13:00





Letölthető állományok:
Új kép.JPG
bútor terv.docx
anatómia I. emelet.pdf

Bírálati szempont: legalacsonyabb összegű ellenszolgáltatás



Ajánlat benyújtásának módja: Zárt borítékban 1 eredeti példányban, a Szegedi Tudományegyetemnek címezve: SZTE Gazdasági és Műszaki Főigazgatóság Szentháromság utca 34, személyesen vagy postai úton. A borítékon és a dokumentációban kérjük feltüntetni az ajánlati sorszámot. Ajánlatát feltöltheti cégszerűen aláírt pdf formátumban, az adott eljárás weboldalán a jobb felső sarokban levő "ajánlattétel" linken keresztül.
Kérjük, hogy ajánlatukat vagy borítékban juttassák el, vagy az adott eljárás weboldalán töltsék fel.

További információ kérhető:

Az ajánlatkérő hivatalos kapcsolattartója: Fakan Zoltán, irodavezető

fakan.zoltan@gmf.u-szeged.hu

Az ajánlatkérő szakmai kapcsolattartója: Széllné Bozsó Mónika, munkatárs SZTE GMF Műszaki és Beruházási Iroda, tel: +36 (62) 546-179, +36 (62) 544-000/6179

email: szellne.bozso.monika@gmf.u-szeged.hu

Az eljárás nyelve: magyar, de az ajánlatkérő angol nyelvű ajánlatot is elfogad. Jelen felhívással Ajánlatkérő olyan cégek jelentkezését várja, akik megfelelő pénzügyi háttérrel rendelkeznek valamint képesek a mielőbbi szállítására. Az ajánlatkérő fenntartja magának a jogot, hogy az ajánlattevőktől további írásbeli tájékoztatást kérjen 5 munkanapon belül, a tájékoztatási igény minden ajánlattevőnek történő egyidejű megküldésével, az érvényes jelentkezések alapján. Ezek után az ajánlatkérő elvégzi az ajánlatok értékelését, amelynek eredményéről a lehető legrövidebb időn belül értesíti az Ajánlattevőket.

Ajánlatkérő fenntartja magának a jogot, hogy a jelen felhívás lefolytatásától indoklás nélkül részlegesen, illetve teljes mértékben elálljon. Az Ajánlatkérő nem vállal felelősséget az elállásból származó következményekért.

A jelen felhívás egyetlen Ajánlattevő által sem tekinthető az Ajánlatkérő által tett szerződéses ajánlatnak vagy kötelezettségvállalásnak. A felhívás és a pályázati eljárás az Ajánlatkérő belső szabályai alapján történik.

Nyertes ajánlattevő: Helyi Érték Kft. (Hódmezővásárhely, Nyikos u. 1.)
Nyertes ajánlati ár: 230 000,-Ft+ÁFA