Szegedi Tudományegyetem Ahol tudás és szándék találkozik

2013  --  Műszaki és Létesítménygazdálkodási Iroda
Ajánlattételi felhívás SZTE/2013/PM02175
A Szegedi Tudományegyetem Gazdasági és Műszaki Főigazgatósága (továbbiakban: Ajánlatkérő) nyílt beszerzési eljárást hirdet.

A beszerzés tárgya: SZTE ÁOK Anatómia, Szövet és Fejlődéstani Intézet (6724 Szeged, Kossuth L. sgt. 40.) felújítás, átalakításra kiviteli terv készítése.
2013. április 18.
Ajánlat sorszáma: SZTE/2013/PM02175

Ajánlattételi határidő: 2013. április 25 14:00

Szállítás, teljesítés tervezett időpontja: Szerződéskötéstől számított 30 naptári nap.

A beszerzés rövid ismertetője:


SZTE ÁOK Anatómia, Szövet- és Fejlődéstani Intézet I. emeleti helyiségeinek (6724 Szeged, Kossuth L. sgt. 40.) felújítása, átalakítása, laborok kialakítása. Az épület átalakításához szükséges kiviteli terveket, engedélyes gáztervet, tételes költségvetést a mellékelt tervezési program szerint kell készíteni. A tervezés során a programot pontosítani, aktualizálni kell.

 

Tervdokumentáció – Kiviteli terv

 

A kiviteli tervdokumentációt a vonatkozó jogszabályoknak megfelelően, különös tekintettel a 191/2009. (IX. 15.) Korm. rendelet szerinti tartalmi követelményeknek megfelelően kell elkészíteni.

 

A tervdokumentációban foglalt kialakítás kizárólag nem építési engedélyhez kötött munkákat tartalmazhat!

 

A tervdokumentációk leadását 6 példány papír alapú és 1 példány elektronikus (CD) formátumban kell teljesíteni.

A tervdokumentációnak tartalmaznia kell 5 példány tételes árazatlan és 1 példány tételes árazott költségvetést is, melyeket nyomtatott és digitális formátumban is át kell adni.

Az egyeztetés után a tervező köteles munkaközi tervet 1 példányban bemutatni illetve leadni. A jóváhagyott munkaközi terv után lehet elvégezni a teljes dokumentálást. A tervezés során figyelembe kell venni a labor kialakításra vonatkozó előírásokat.

 

Építészet

 

- burkolat cserék az érintett helyiségekben

- álmennyezet kiépítése

- külső nyílászárók felújítása, mázolása, árnyékolás megoldása

- belső ajtók felújítása, cseréje szükség szerint

- mellékelt dokumentum

 

Gépészet

 

- engedélyes gázterv készítése (tervező engedélyezteti)

- igény szerinti klimatizálás

- teljes körű épületgépészeti tervezés (víz, gáz, csatorna, fűtés…)

- mellékelt dokumentum

 

Elektromosság

 

A tervezést a jelenleg érvényben lévő rendeletek, jogszabályok betartásával kell végezni.

Az érintett területen teljesen új elektromos hálózatok kerülnek kiépítésre, a lent felsoroltak szerint. A tervezésnél fel kell mérni, és figyelembe kell venni a villamos teljesítmények, egyidejűségek, és az áramszolgáltató betáplálást (HÁF) is. Tűzjelző, kamera, riasztó rendszernél a tervezőnek egyeztetési kötelezettsége van a Katasztrófavédelemmel, és az SZTE Védelmi Irodájával is. A villamos terveknek tartalmaznia kell továbbá a gépészeti berendezések energiaellátásának, vezérlésének teljes tervdokumentációját.

 

Rendszerek:

 

- 0,4 kV-os világítási, és csatlakozói hálózat. (gépek energiaellátása)

- informatikai strukturált hálózat (számítógép, telefon, stb…)

- kamera, és beléptető rendszer

- riasztórendszer

- tűzjelző rendszer

 

 

Az átalakítással érintett termek elektromos hálózatának kiépítését szükség szerinti felújítását a jelenleg érvényben lévő rendeletek, és jogszabályok szerint kell tervezni.

Az elektromos tervezés szakaszában az egyeztetéseket és az igények felmérését az épület használójával, Védelmi Irodával, és a Műszaki és Beruházási Irodával kell lefolytatni.

 

 

ÁLTALÁNOS KÖVETELMÉNYEK

 

A tervek elkészítésénél alapvető szempont a műszakilag megfelelő, de költséghatékony megoldások betervezése.

 

A tervezőnek le kell folytatnia a szükséges hatósági, szakhatósági egyeztetéseket, valamint folyamatos konzultációkat az üzemeltető képviselőjével, ezen egyeztetésekről és konzultációkról emlékeztetőt köteles felvenni, melyet az érintetteknek eljuttat.

 

A tervezőnek a tervezési feladat elvégzéséhez szükséges mindennemű feltárást el kell végezni, ezek költségét – az ideiglenes helyreállítással – az ajánlati árnak tartalmaznia kell. Az egyetem a feltáráshoz szükséges területet biztosítja.

 

A tervezés és a szakhatósági egyeztetések során felmerülő összes költség a nyertes pályázót terheli! (Tulajdoni lap és hiteles térképmásolat kiváltása, közreműködő szakhatóságok igazgatási szolgáltatási díjai, szakértői díjak…)

 

Az elkészítendő tervdokumentációkban foglalt szellemi alkotás a Tervező tulajdona lesz, de a tervezési díj megfizetésével a Megrendelő megszerzi a tervdokumentáció szabad, korlátozásmentes felhasználói jogát, amely alapján a Tervező előzetes jóváhagyása nélkül (de tájékoztatása mellett) jogosult azt teljes körben és korlátlan ideig felhasználni, továbbtervezésre másnak átadni, ezzel kapcsolatban a Tervezőnek további igénye nincs.

 

Az építőipari kivitelezési tevékenységről szóló 191/2009. (IX. 15.) Korm. rendelet 15. § szerint a felek elfogadják, hogy a tervező az általa készített kivitelezési dokumentációval kapcsolatban az Étv. 33. § (4) bekezdése szerint tervezői művezetést végezhet, amelyre a felek ennek szükségessége esetén külön szerződést kötnek.

 

A tervező köteles, a kivitelezésre kiírt pályázatok során feltett, tervezéssel összefüggő kérdésekre - többek között a betervezett anyagok és berendezések kiváltására megajánlottak megfelelőségére, és elfogadására történő nyilatkozással -, a Megrendelő által megadott határidőre válaszolni.

 

A Vállalási árat a következő formában kérjük megadni:

 

Nettó összeg kiviteli tervdokumentáció:..…………………,- Ft

ÁFA 27%: ..…………………,- Ft

Bruttó összeg: ..…………………,- Ft

 

A nyertes pályázó 1 végszámlát nyújthat be a kivitelezési tervek sikeres átadás-átvételét követően.

A számla fizetési határideje 60 naptári nap.

Megrendelő előleget nem fizet.

 

Helyszíni bejárás helye és időpontja:

 

SZTE ÁOK Anatómia, Szövet- és Fejlődéstani Intézet Szeged, Kossuth L. sgt. 40.

 

2013. április 19. 9 óra



Letölthető állományok:
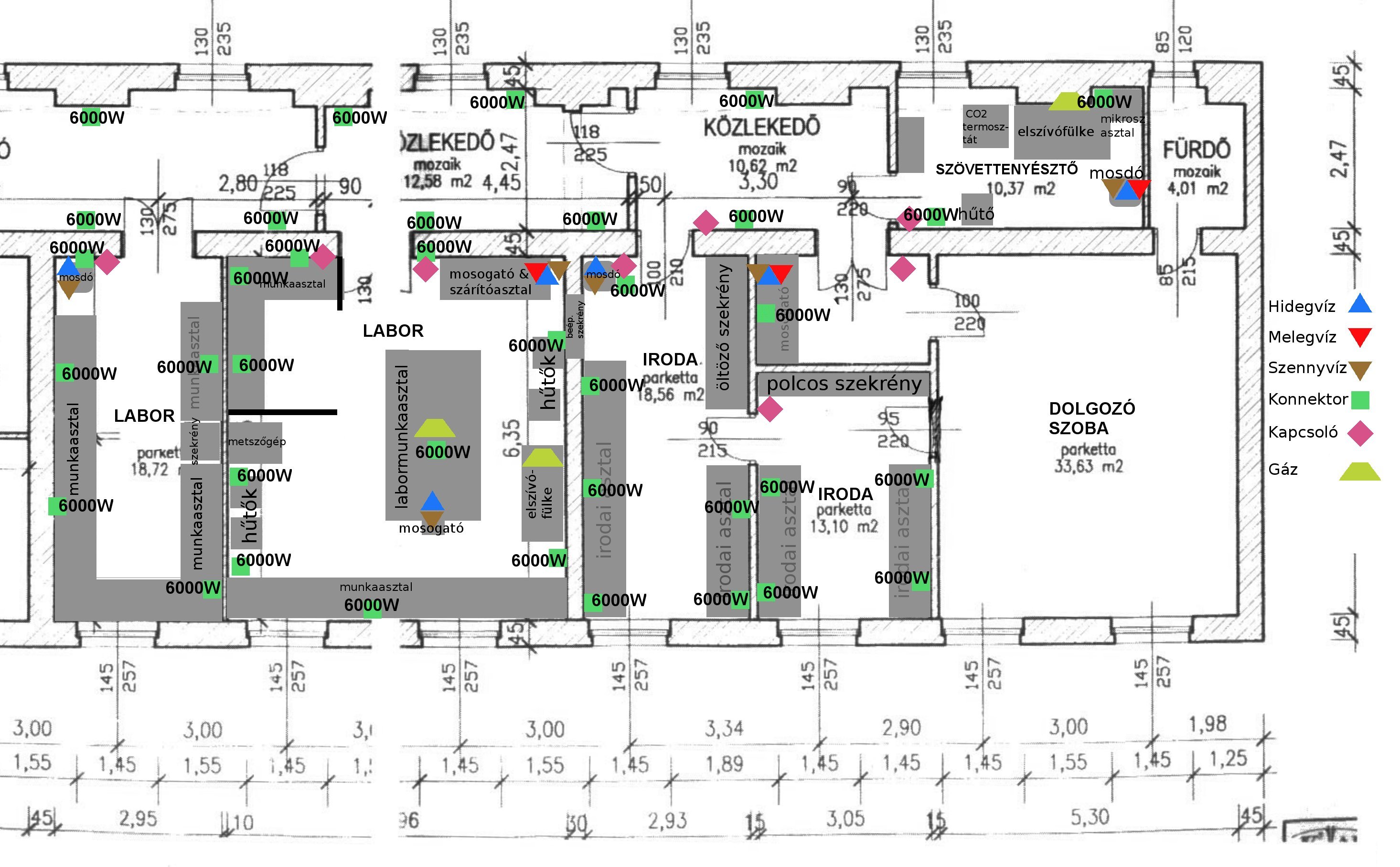
anatómia I. emelet.pdf
laboralaprajz-anatomiai-intezet-ver4.jpg
SZTE ÁOK Anatómiai Intézet igény lista-jav.doc

Bírálati szempont: legalacsonyabb összegű ellenszolgáltatás



Ajánlat benyújtásának módja: Zárt borítékban 1 eredeti példányban, a Szegedi Tudományegyetemnek címezve: SZTE Gazdasági és Műszaki Főigazgatóság Szentháromság utca 34, személyesen vagy postai úton. A borítékon és a dokumentációban kérjük feltüntetni az ajánlati sorszámot. Ajánlatát feltöltheti cégszerűen aláírt pdf formátumban, az adott eljárás weboldalán a jobb felső sarokban levő "ajánlattétel" linken keresztül.
Kérjük, hogy ajánlatukat vagy borítékban juttassák el, vagy az adott eljárás weboldalán töltsék fel.

További információ kérhető:

Az ajánlatkérő hivatalos kapcsolattartója: Fakan Zoltán, irodavezető

fakan.zoltan@gmf.u-szeged.hu

Az ajánlatkérő szakmai kapcsolattartója: Széllné Bozsó Mónika, munkatárs SZTE GMF Műszaki és Beruházási Iroda, tel: +36 (62) 546-179, +36 (62) 544-000/6179

email: szellne.bozso.monika@gmf.u-szeged.hu

Az eljárás nyelve: magyar, de az ajánlatkérő angol nyelvű ajánlatot is elfogad. Jelen felhívással Ajánlatkérő olyan cégek jelentkezését várja, akik megfelelő pénzügyi háttérrel rendelkeznek valamint képesek a mielőbbi szállítására. Az ajánlatkérő fenntartja magának a jogot, hogy az ajánlattevőktől további írásbeli tájékoztatást kérjen 5 munkanapon belül, a tájékoztatási igény minden ajánlattevőnek történő egyidejű megküldésével, az érvényes jelentkezések alapján. Ezek után az ajánlatkérő elvégzi az ajánlatok értékelését, amelynek eredményéről a lehető legrövidebb időn belül értesíti az Ajánlattevőket.

Ajánlatkérő fenntartja magának a jogot, hogy a jelen felhívás lefolytatásától indoklás nélkül részlegesen, illetve teljes mértékben elálljon. Az Ajánlatkérő nem vállal felelősséget az elállásból származó következményekért.

A jelen felhívás egyetlen Ajánlattevő által sem tekinthető az Ajánlatkérő által tett szerződéses ajánlatnak vagy kötelezettségvállalásnak. A felhívás és a pályázati eljárás az Ajánlatkérő belső szabályai alapján történik.

Nyertes ajánlattevő: Helyi Érték Kft. (Hódmezővásárhely, Nyikos u. 1.)
Nyertes ajánlati ár: 1 050 000,-Ft+ÁFA