Szegedi Tudományegyetem Ahol tudás és szándék találkozik

2018  --  Szent-Györgyi Albert Klinikai Központ
Ajánlattételi felhívás SZTE/2018/KB09328
A Szent-Györgyi Albert Klinikai Központ (továbbiakban: Ajánlatkérő) nyílt beszerzési eljárást hirdet.

A beszerzés tárgya: SZTE Gyermekgyógyászati Klinika és Gyermekegészségügyi Központ „D” épületének felújítási munkái.
2018. október 24.
Ajánlat sorszáma: SZTE/2018/KB09328

Ajánlattételi határidő: 2018. október 29 12:00

Szállítás, teljesítés tervezett időpontja: Szerződéskötéstől számított 45 naptári napon belül

A beszerzés rövid ismertetője:

Gyermekkórház „D” épület felújításának munkálatai.


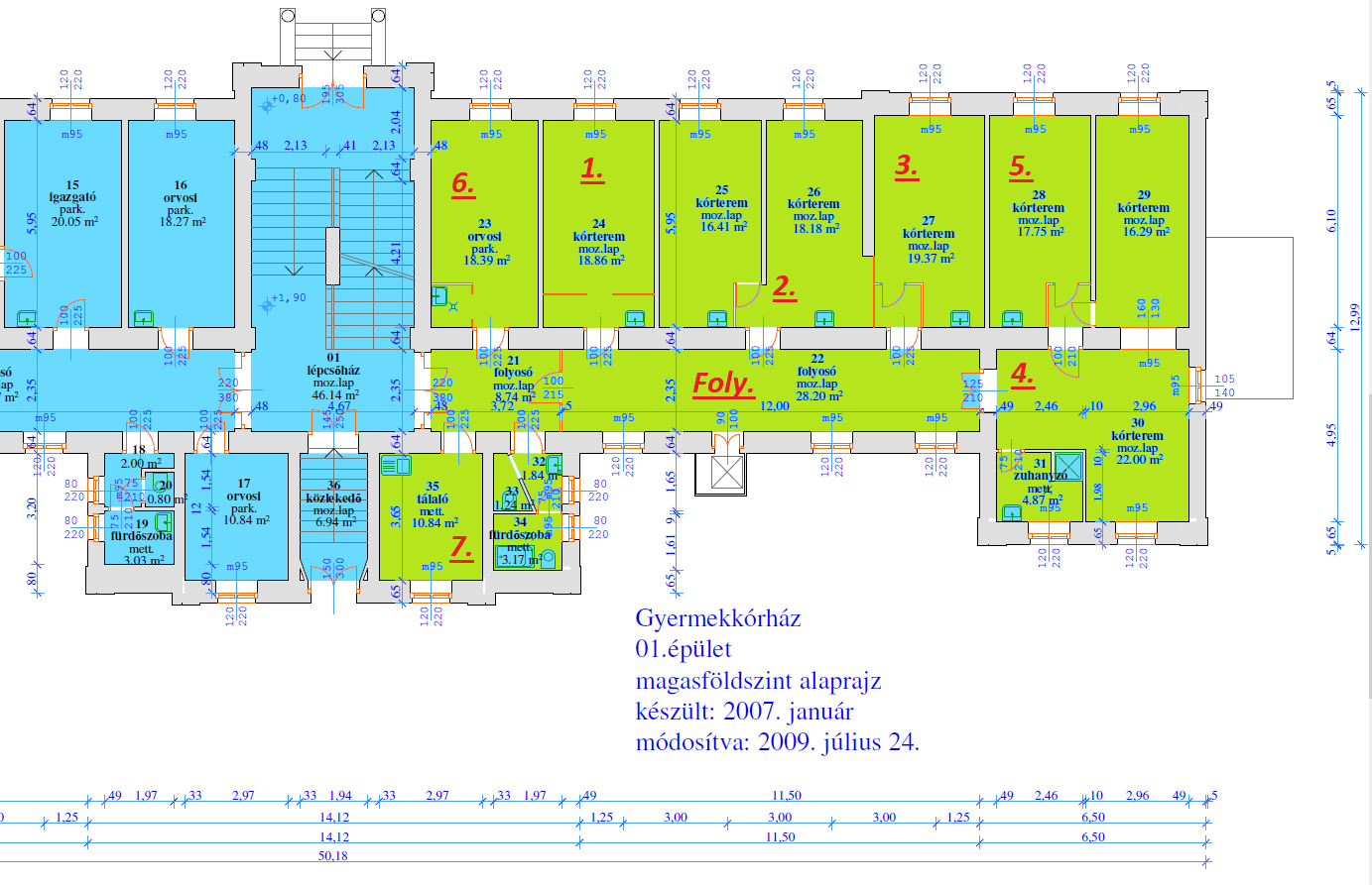
A munkafeladatok a mellékelt vázlatrajzban jelzett helyiségek felújítása (zöld színű alapterületen, 1-7. számmal jelzett szobák, a folyosó, mosdó). A felújítás célja genetika labor átköltöztetéséhez a helyiségek felújítása/előkészítése.

Szükséges elbontani, a régi elkülönítő helyiségek egy részében az elkülönítő falakat és az orvosi-gáz hálózatáról lecsatlakozni (a meglévő hálózat visszabontásra nem kerül). A bontás helyén a burkolat javítása a visszabontott anyagokból pótolva azt. Régi szanitereket, és a hozzátartozó szerelvényeket cserélni. A szanitereket a megrendelő raktárkészletről biztosítja.

A szükséges mértékben az elektromos hálózat javítása/bővítése (ahol szükséges a hálózatot bővíteni ott falon kívüli kábelcsatornázással/szerelvényezéssel).

Feladat a folyosó és a helyiségek lehullott/sérült vakolatának javítása tisztasági festése, a festékanyagot, fehér diszperziós festéket a megrendelő raktárkészletről biztosítja (csak a diszperziós festéket!). A folyosó lábazati festését olajfestékkel kérjük megoldani. Nyílászárók (16 db. ablak és 11 db. beltéri ajtó) javítása, megfelelő tömítés biztosítása (tekintettel, a laboratóriumok igényeire), festés-mázolása, az ablakok rovarhálóval történő bevédése.

Az 1-7. helyiségekbe split rendszerű klimatizálás elhelyezése, figyelembe véve, hogy az 5. helyiségbe nagy teljesítményű hűtők kerülnek elhelyezésre.



Általános kivitelezési követelmények, előírások


A munkavégzésből adódó törmeléket, szemetet stb. kivitelezőnek folyamatosan el kell szállítania a teljesítési helyszínről, és a hatályos jogszabályi előírásoknak megfelelő hulladékkezelést kell alkalmazni. Az ajánlatnak tartalmaznia kell a finomtakarítás költségeit is. A hulladékszállítás során a vonulási útvonalat az esetleges a hulladékszállításból adódó szennyeződéstől mentesíteni köteles a kivitelező.

A munka költségeinek összeállításánál az árképzés irányelvei szerint járjanak el, vegyenek figyelembe, a teljesítéshez szükséges minden költséget abban az esetben is, ha a költségvetés tételeinél nem szerepel, de a megvalósításhoz elengedhetetlenül szükséges (anyag, munkadíj, szállítási- és gépköltségek, közterület-használati díjak, törmelékszállítás, ideiglenes melléklétesítmények, finomtakarítás költségei, tervekben, engedélyekben szereplő előírásokat-, díjakat). Kiemelt figyelemmel a munka megvalósítása során a gépészeti, hálózati rendszerek kiépítésénél a már meglévő rendszerhez való csatlakozásra, tekintettel arra, hogy a csatlakozás számos esetben nem közvetlen a kivitelezés helyszínén adott, az elosztószekrény, bekötési pont attól távolabb esik. A gépészeti, hálózati rendszerek kiépítésénél a kivitelező köteles a meglévő rendszerhez legközelebb álló technológiát alkalmazni attól eltérni csak a megrendelő külön kérésére vagy technológiai összeférhetetlenség okán lehet, továbbá ha a rendszer kiépítésére van a megrendelőnek szerződött partnere, azzal szorosan együttműködve kell végezni a kivitelezést.

Az építkezés időtartamára a közterület foglalási engedély, utca, utcarész lezárási, forgalom elterelési engedély beszerzése és annak esetleges költségei is az ajánlattevőt terhelik.

Az esetlegesen a kivitelezés helyszínén maradó berendezési tárgyak bevédéséről a kivitelezőnek kell gondoskodnia! A kivitelezés során figyelembe kell venni, hogy a munkavégzés működő közösségi épületben történik!

A szakági (építészet, gépészet, elektromos (erős és gyengeáram)) szereléseket a jelenleg érvényben lévő jogszabályi előírások, szabványok, és rendeletek szerint kell kivitelezni. A szabványos szerelésről és a megfelelő „D” tervi komplett, üzembe-helyezett rendszer átadásról és dokumentáltságáról a szakági felelős műszaki vezető gondoskodjon, írásosan nyilatkozzon!

A szakszerűtlen kivitelezési tevékenységből eredő károk a kivitelezőt terhelik és a vétlen vagy szándékos magatartásból eredő károkat kivitelezőnek az átadás napjáig meg kell szüntetni. A kivitelezés (szerelés, üzembe helyezés) során a munka jellegének megfelelő általános szerelési munkavédelmi utasításban előírtakat be kell tartani.

Amennyiben a munkára benyújtott árajánlat nem tartalmazza a fentiekben tárgyalt költségeket azok a megrendelő terhére el nem számolhatók, minden esetben a kivitelezőt terhelik.

A kivitelező számlát csak a megrendelő által kiállított teljesítésigazolás után nyújthat be.

A mellékletben szereplő Felolvasólapot és Átláthatósági nyilatkozatot kérjük az ajánlattal együtt benyújtani.

Az árajánlatban az összegeket nettó érték + ÁFA formában kérjük feltüntetni.

Az Egyetemnek nem áll módjában előleget kifizetni.

 

A pályázatból kizáró okok:

- Nem munkanemek szerint bontott vagy nem tételes árajánlat benyújtása.

- Az árajánlat nem terjed ki minden szakágra (építész, gépész, villamos: erős- gyenge áram), amennyiben ezt a munka igényli.



Letölthető állományok:
Felolvasólap.pdf
Átláthatósági nyilatkozat.pdf
2018.07.25. Újszeged Gyermek kl. D épület felújítás - Melléklet.PNG

Bírálati szempont: legalacsonyabb összegű ellenszolgáltatás


További információk:

Az ajánlatkérő a megadott ajánlati áron felül egyéb költségtérítést nem nyújt be az ajánlattevő részére, az ajánlatnak tartalmaznia kell az összes adó, illeték, szállítási vagy egyéb járulékos költségeket is, a hatályos magyar jogszabályok szerint.




Ajánlat benyújtásának módja:
Felhívjuk az ajánlattevők figyelmét, hogy 2015.09.01-től ajánlatot kizárólag csak elektronikus formában, - a honlapon feltöltve - fogad be az ajánlatkérő.
( A borítékban beadott ajánlat érvénytelen!)
A dokumentációban kérjük feltüntetni az ajánlati sorszámot. Ajánlatát cégszerűen aláírt pdf formátumban, az adott eljárás weboldalán a jobb felső sarokban levő "ajánlattétel" linken keresztül tudja az ajánlattevő feltölteni.

További információ kérhető:

Az ajánlatkérő hivatalos kapcsolattartója: Varjasi Ottó, osztályvezető

varjasi.otto@med.u-szeged.hu

Az ajánlatkérő szakmai kapcsolattartója: Martonosi Attila Csaba, SZTE MI Műszaki és Vagyongazdálkodási Iroda, tel: +36 (62) 546-180, +36 (62) 544-000/6180

email: martonosi.attila@gmf.u-szeged.hu


Az eljárás nyelve: magyar, de az ajánlatkérő angol nyelvű ajánlatot is elfogad. Jelen felhívással Ajánlatkérő olyan cégek jelentkezését várja, akik megfelelő pénzügyi háttérrel rendelkeznek valamint képesek a mielőbbi szállítására. Az ajánlatkérő fenntartja magának a jogot, hogy az ajánlattevőktől további írásbeli tájékoztatást kérjen 5 munkanapon belül, a tájékoztatási igény minden ajánlattevőnek történő egyidejű megküldésével, az érvényes jelentkezések alapján. Ezek után az ajánlatkérő elvégzi az ajánlatok értékelését, amelynek eredményéről a lehető legrövidebb időn belül értesíti az Ajánlattevőket.

Ajánlatkérő fenntartja magának a jogot, hogy a jelen felhívás lefolytatásától indoklás nélkül részlegesen, illetve teljes mértékben elálljon. Az Ajánlatkérő nem vállal felelősséget az elállásból származó következményekért.

A jelen felhívás egyetlen Ajánlattevő által sem tekinthető az Ajánlatkérő által tett szerződéses ajánlatnak vagy kötelezettségvállalásnak. A felhívás és a pályázati eljárás az Ajánlatkérő belső szabályai alapján történik.

Nyertes ajánlattevő: Sváb Falu Szociális Szövetkezet
Nyertes ajánlati ár: 9 900 000,-Ft+ÁFA