Szegedi Tudományegyetem Ahol tudás és szándék találkozik

2017  --  Beszerzési és Szolgáltatási Iroda (anyagok, eszközök)
Ajánlattételi felhívás SZTE/2017/PB07463

Módosított ajánlattételi felhívás

A Szegedi Tudományegyetem (továbbiakban: Ajánlatkérő) nyílt beszerzési eljárást hirdet.

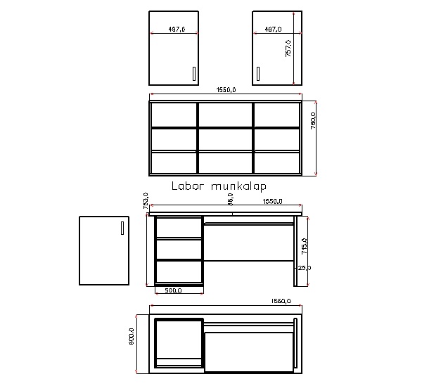
A beszerzés tárgya: SZTE ÁOK Pathológiai Intézetben laboratórium bútorzat tervezése, kivitelezése
2017. február 03.
Ajánlat sorszáma: SZTE/2017/PB07463

Ajánlattételi határidő: 2017. február 08 10:00

Szállítás, teljesítés tervezett időpontja: szerződéskötéstől számított 30 naptári nap

A beszerzés rövid ismertetője:

SZTE ÁOK Pathológiai Intézetben laboratórium bútorzat tervezése, kivitelezése


Részletes termékleírás és műszaki rajzok: lásd csatolt mellékletek


Szakmai kérdésekben kapcsolattartók:

Dr. Sükösd Farkas és Dr. Pankotai-Bodó Gabriella

Tel.: +36 62-546-168

E-mail: sukosd.farkas@med.u-szeged.hu; pankotai-bodo.gabriella@med.u-szeged.hu


Tervezett szállítási és számlakiküldési cím: SZTE ÁOK Pathológiai Intézet, 6720 Szeged, Állomás u. 2.

Tervezett számlán szereplő cím: Szegedi Tudományegyetem, 6720 Szeged, Dugonics tér 13.


A beszerzés fedezetéül szolgáló projekt száma: GINOP-2.3.2-15-2016-00020 

Projekt címe: "A genom instabilitás és a karcinogenezis molekuláris térképezése, MolMedEx TUMORDNS"

 



Letölthető állományok:
1.jpg
2.jpg
3.jpg
4.jpg
5.jpg
6.jpg
7.jpg
8.jpg
javított laborbútor specifikáció 17 02 06.docx

Bírálati szempont: legalacsonyabb összegű ellenszolgáltatás


További információk:

Az ajánlatkérő a megadott ajánlati áron felül egyéb költségtérítést nem nyújt be az ajánlattevő részére, az ajánlati árnak tartalmaznia kell az összes adó, illeték, szállítási vagy egyéb járulékos költségeket is, a hatályos magyar jogszabályok szerint.


Fizetési mód: utólagosan, 60 napos átutalással

 

A kiírt tételekre csak együttes ajánlat tehető, az ajánlatkérő részajánlatot nem értékel, ajánlattevőnek minden, a felhívásban részletezett termékre és tartozékra ajánlatot kell adnia.


Kérjük, hogy a benyújtott ajánlatokon minden esetben tüntessék fel a nettó/bruttó rész-, és végösszegeket is (a kerekítési szabálynak megfelelően).


Kérjük, tüntessék fel a garanciális/jótállási feltételeket.

 

Az ajánlatkérő csak olyan ajánlatot fogad elahol az ajánlati ár forintban meghatározott, devizás ajánlati ár. Ez esetben fel kell tüntetni a forintosított ellenértéket, és rögzíteni kell, hogy mely árfolyamon számolták azt ki és a forintos ellenértékre kell vállalni a 30 napos árgaranciát. A forintban (vagy forintra átszámolt devizás) megadott ajánlati ár érvényességi ideje legalább 30 nap kell legyen.

 

"Jelen beszerzési eljárásban csak nettó 15 millió forint érték alatt, azaz közbeszerzési értékhatár alatt köthető szerződés. Az ezt meghaladó ajánlatok értékelése során ajánlatkérő figyelemmel lesz a közbeszerzési törvény becsült érték megállapítására vonatkozó előírásaira, és adott esetben erre tekintettel az eljárás eredménytelenítéséről határoz." 




Ajánlat benyújtásának módja:
Felhívjuk az ajánlattevők figyelmét, hogy 2015.09.01-től ajánlatot kizárólag csak elektronikus formában, - a honlapon feltöltve - fogad be az ajánlatkérő.
( A borítékban beadott ajánlat érvénytelen!)
A dokumentációban kérjük feltüntetni az ajánlati sorszámot. Ajánlatát cégszerűen aláírt pdf formátumban, az adott eljárás weboldalán a jobb felső sarokban levő "ajánlattétel" linken keresztül tudja az ajánlattevő feltölteni.

További információ kérhető:

Az ajánlatkérő hivatalos kapcsolattartója: Szöllősy Ervin

szollosy.ervin@gmf.u-szeged.hu

Az ajánlatkérő szakmai kapcsolattartója: Sükösd Farkas dr., pathológus szakorvos SZTE ÁOK Pathológiai Intézet, tel: +36 (62) 546-175, +36 (62) 544-000/6175, +36 (62) 546-168, +36 (62) 544-000/6168

email: sukosd.farkas@med.u-szeged.hu


Az eljárás nyelve: magyar, de az ajánlatkérő angol nyelvű ajánlatot is elfogad. Jelen felhívással Ajánlatkérő olyan cégek jelentkezését várja, akik megfelelő pénzügyi háttérrel rendelkeznek valamint képesek a mielőbbi szállítására. Az ajánlatkérő fenntartja magának a jogot, hogy az ajánlattevőktől további írásbeli tájékoztatást kérjen 5 munkanapon belül, a tájékoztatási igény minden ajánlattevőnek történő egyidejű megküldésével, az érvényes jelentkezések alapján. Ezek után az ajánlatkérő elvégzi az ajánlatok értékelését, amelynek eredményéről a lehető legrövidebb időn belül értesíti az Ajánlattevőket.

Ajánlatkérő fenntartja magának a jogot, hogy a jelen felhívás lefolytatásától indoklás nélkül részlegesen, illetve teljes mértékben elálljon. Az Ajánlatkérő nem vállal felelősséget az elállásból származó következményekért.

A jelen felhívás egyetlen Ajánlattevő által sem tekinthető az Ajánlatkérő által tett szerződéses ajánlatnak vagy kötelezettségvállalásnak. A felhívás és a pályázati eljárás az Ajánlatkérő belső szabályai alapján történik.

Az aktuális beszerzési eljárás érvénytelenítésre került.